Skip to content
shop
stock
look
learn
Open main navigation
Close main navigation
shop
stock
look
learn
Search our FAQs
There are no suggestions because the search field is empty.
Help Center
Material guidelines
clé slate
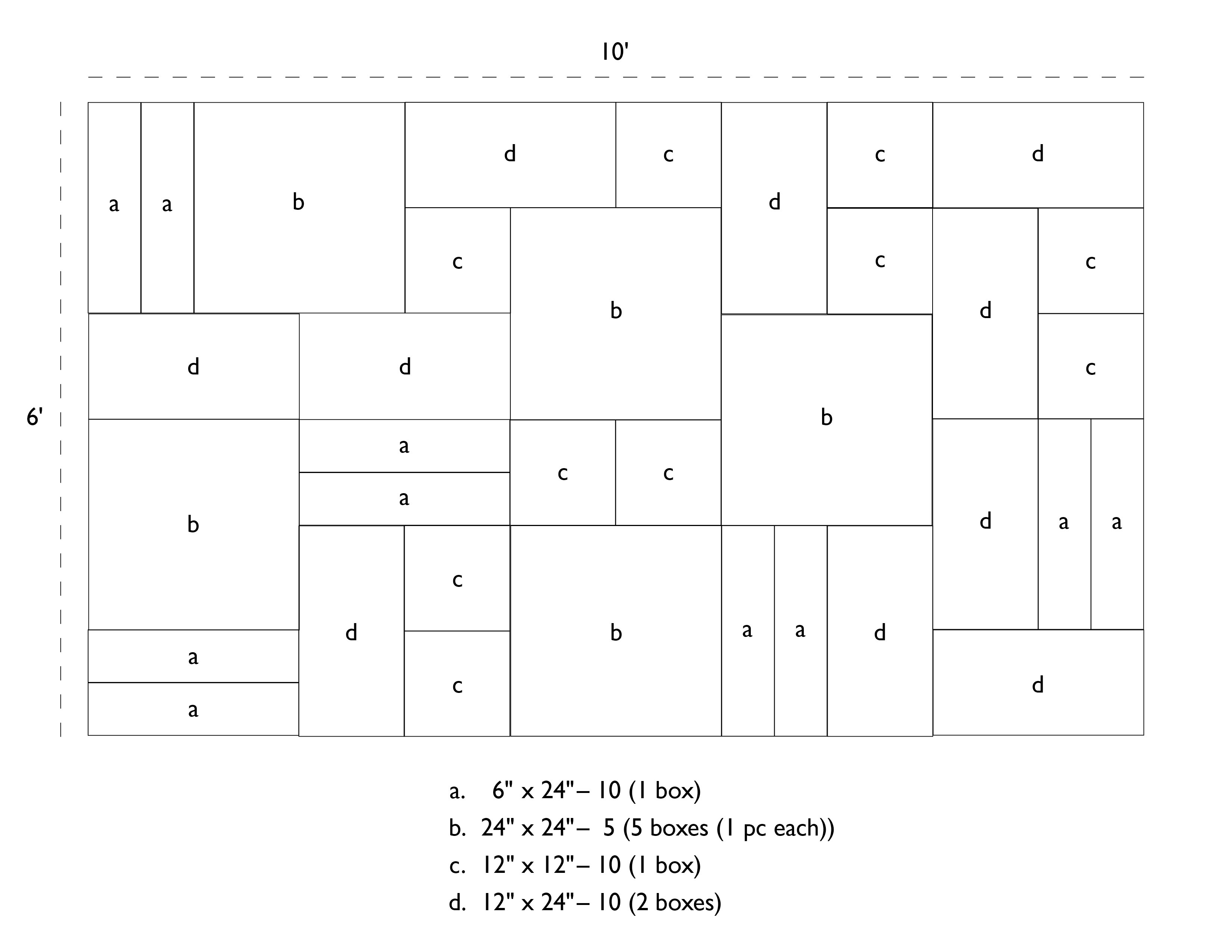
clé slate modernist mosaic installation blueprint
Modernist mosaic installation blueprint PDF